Direkt im Stadtzentrum! Repräsentative Einzelhandels-/ Dienstleistungsfläche in Rostock-Stadtmitte
Übersicht
Stadtmitte
Burgwall 5
1.870,00 €
Kaltmiete
920,00 €
Nebenkosten
5.610,00 €
Kaution
311.49 m²
Fläche
Büros und Kanzleien
Gewerbetyp
01.10.2026
Verfügbar ab
01/5124.0001.4001
Objektnummer
Objektbeschreibung
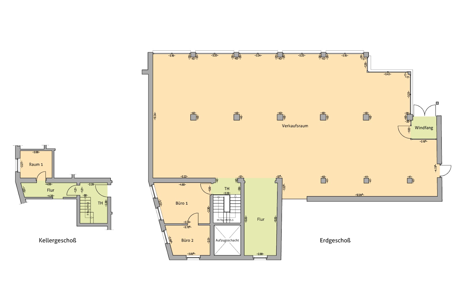
Großartig. Repräsentativ. Diese attraktive Gewerbefläche mit 311,49 m² befindet sich im Erdgeschoss eines mehrgeschossigen Wohn- und Geschäftshauses mitten im Rostocker Stadtzentrum. Sie eignet sich perfekt für Einzelhändler oder Dienstleister, denn hier liegt die direkte Fußgängerzone zwischen dem Stadthafen und der Flanier- und Einkaufsmeile „Kröpeliner Straße“.
Eine große Schaufensterfront garantiert Ihnen die maximale Sichtbarkeit und eine bestmögliche Präsentation Ihres Waren- und Dienstleistungsangebots. Über einen schützenden Windfang gelangen Sie und Ihre Kunden in den großzügigen Hauptverkaufsraum: 241,88 m² bieten Ihnen viel Platz für Ihr individuelles Konzept mit modernen Gestaltungsmöglichkeiten. Zwei weitere helle Räume können Sie als Büroflächen nutzen. Ein praktischer geräumiger Flur hält Abstellmöglichkeiten für Sie bereit. Das WC erreichen Sie bequem über eine Treppe.
Die Besichtigung findet im vermieteten Zustand statt. Grundsätzlich sind sämtliche Ausstattungen wie auch das Mobiliar und die Dekoration kein Bestandteil dieses Gewerbeobjektes. Eine Übernahmepflicht Ihrerseits besteht nicht. Bei Interesse treffen Sie alle Absprachen individuell mit dem Mieter. Das Objekt wird nach Vereinbarung übergeben.
Grundriss
Interesse an diesem Gewerbe?
Stellen Sie eine unverbindliche Anfrage -
wir melden uns schnellstmöglich bei Ihnen.
Ausstattung
Große repräsentative Schaufensterfront, ein Windfang, ein großzügiger Hauptverkaufsraum mit zwei weiteren Räumen zur individuellen Nutzung, separates WC (Raum 1), Abstellfläche
Lage
Zentral. Vielfältig. Komfortabel. Das Stadtzentrum von Rostock bietet Ihnen als Wohnstandort alles, was das Leben in der Stadt so interessant macht: die Bummel- und Flaniermeile auf der Kröpeliner Straße, vielfältige Einkaufsmöglichkeiten für den täglichen Bedarf, kleine individuelle Geschäfte und abwechslungsreiche Kultur. Der Rostocker Stadthafen ist die perfekte Location für lange Spaziergänge oder gesellige Abende mit Freunden in netten Lokalen und verschiedenen Restaurants. Selbstverständlich sind öffentliche Verkehrsmittel bequem zu Fuß zu erreichen.
Energieausweis
Anfrageformular
Bitte beachten: Die mit * gekennzeichneten Felder sind Pflicht und müssen ausgefüllt werden.
Kostenloser Suchauftrag – passendes Angebot erhalten
Sie sind noch nicht in unserer Interessentendatei angemeldet?
Dann geben Sie Ihren kostenlosen Suchauftrag für Ihr Wunschgewerbe an.
